JN 2678
Edificio de 4 pisos con unidades de 1, 2 y 3 ambientes.
Año:2017
Locación:Buenos Aires
Etapa:Obra Finalizada
Amenities
Terraza con pileta, solárium, y parrilla.
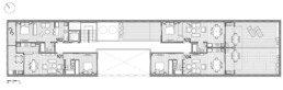
Unidades
Edificio de 4 pisos con unidades de 1, 2 y 3 ambientes.
Edificio de 4 pisos con unidades de 1, 2 y 3 ambientes.
Terraza con pileta, solárium, y parrilla.
Edificio de 4 pisos con unidades de 1, 2 y 3 ambientes.
Proyectos Relacionados